Поиск по сайту

Фильтр

Жилая недвижимость
Коммерческая недвижимость
Машино-места
Загородная недвижимость
Округ
Метро
Улица
Количество комнат
Площадь, м²
Цена, ₽ в месяц, без НДС Цена, ₽ за м² в год, без НДС Цена, ₽ в месяц, без НДС
Фильтры
Найти
Расширенный фильтр
Участие в аукционе
Состояние
Меблировка

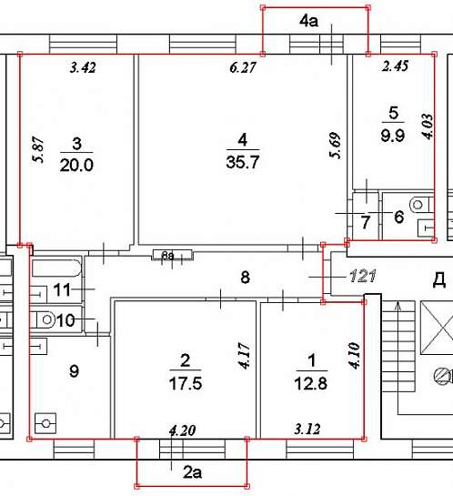
Ломоносовский проспект, дом 38, квартира 121

Жилая недвижимость
Минимальная цена аренды:
147 719 ₽ в месяц, без НДС
Западный АО,
Ломоносовский проспект
7 мин.
Университет
10 мин.
Описание
Количество комнат: 5
Количество ванных комнат: 1
Общая площадь: 123.7
Жилая площадь: 95.9
Площадь кухни: 7.9
Этаж: 6
Высота потолков: 260
Лоджия, балкон: Балкон
Материал стен: кирпич
5 комнатное помещение, оборудованное кухонной мебелью и бытовой техникой, на 6 этаже в доме с охраняемой территорией, развитой инфраструктурой и удобной транспортной доступностью. Метро "Ломоносовский проспект". Требуется проведение ремонтных работ.
Заявка на осмотр
Объект выставлен на аукцион
07.11.2025
Дата начала приема
заявок:
10.10.2025
Дата окончания приема заявок:
05.11.2025
Срок действия договора аренды:
3 года
Лот № 2
Задаток оплачивается со счета компании до даты окончания приема заявок

Появились вопросы?Мы вам перезвоним

Появились вопросы?Мы вам перезвоним