Поиск по сайту
Фильтр
Apartments
Commercial
Parking spaces
Country Estate
District
Subway
Street
Rooms
Square, m²
Price, per month, VAT excluded Price, per m² per years, VAT excluded Price, per month, VAT excluded
Фильтры
Search
Advanced filter
Auction
Condition
Furnishing

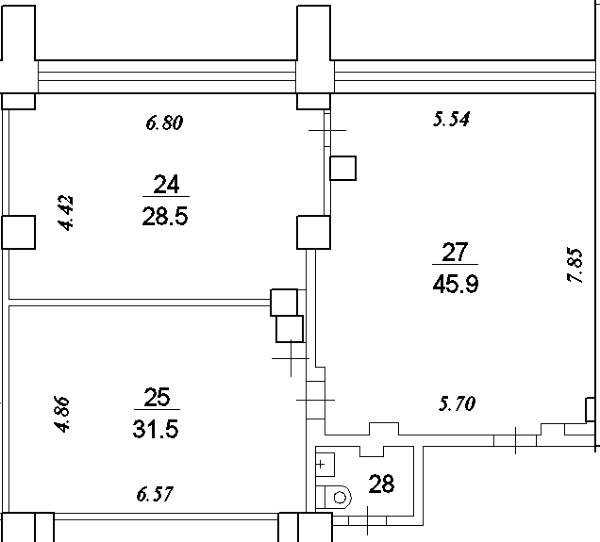
KRUTITSKIY VAL STREET, 3, build. 2, 1st floor, apt.I, rooms 24,25,27

Commercial real estate
Min rental price:
17 000 rub. per month, without VAT
Southeast,
Proletarskaya
2 min.
Description
Number of rooms: 4
Gross area: 105.9
Floor: 1
Height: 255
Wall material: brick


Apartment view request
Object is on auction
14.01.2026
Application start date:
05.12.2025
Application Deadline:
12.01.2026
The term of the lease:
3 years
Lot № 1
The deposit is paid from the company’s account until the deadline for receiving applications
Dear users!

We inform you about a change in the procedure for crediting funds to the Universal Trading Platform of Sberbank-AST JSC (hereinafter referred to as the UTP).

All funds from 02/01/2024 will be credited to the UTP only to a single account 40702810300020038047 (account to ensure participation in procedures) using payment markings, namely:

To credit funds as a deposit for participation in an auction, the purpose of payment of the payment order must indicate the purpose of the transfer of funds - " The deposit is not subject to VAT."

Sample payment order.


You have questions?We will call you back

You have questions?We will call you back