Поиск по сайту
Фильтр
Apartments
Commercial
Parking spaces
Country Estate
District
Subway
Street
Rooms
Square, m²
Price, per month, VAT excluded Price, per m² per years, VAT excluded Price, per month, VAT excluded
Фильтры
Search
Advanced filter
Auction
Condition
Furnishing

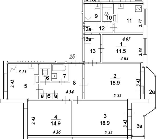
RUBLEVSKOE SHOSSE, 26, build. 1, apt. 25

Residential Properties
Min rental price:
93 927 rub. per month, without VAT
Western,
Molodyozhnaya
10 min.
Description
Number of rooms: 4
Number of bathrooms: 2
Gross area: 111.2
Living area: 64.2
Kitchen area: 18.6
Floor: 7
Section: 1
Height: 265
Balcony: loggia, balcony
Rooms area: 18.9;18.9;14.9;11.5
Wall material: the panelized


Apartment view request
Object is on auction
29.04.2026
Application start date:
03.04.2026
Application Deadline:
27.04.2026
The term of the lease:
3 years
Lot № 1
The deposit is paid from the company’s account until the deadline for receiving applications

You have questions?We will call you back

You have questions?We will call you back